Lewis County Wa Real Estate Excise Tax Affidavit . real estate excise tax information & form. use this worksheet to calculate state and local real estate excise tax (reet) per county, when the sale includes parcels in. The minimum payment to process a reet. use this worksheet to calculate state and local real estate excise tax (reet) per county, when the sale includes parcels in. please print and complete four copies of the real estate excise tax affidavit. Washington state law requires that a real estate excise tax affidavit be completed. this section explains when a real estate excise tax affidavit is required for the transfer of real property. Although acceptable in lewis county, the following excise tax forms may not be accepted in all counties.
from www.pdffiller.com
The minimum payment to process a reet. real estate excise tax information & form. Although acceptable in lewis county, the following excise tax forms may not be accepted in all counties. use this worksheet to calculate state and local real estate excise tax (reet) per county, when the sale includes parcels in. this section explains when a real estate excise tax affidavit is required for the transfer of real property. please print and complete four copies of the real estate excise tax affidavit. use this worksheet to calculate state and local real estate excise tax (reet) per county, when the sale includes parcels in. Washington state law requires that a real estate excise tax affidavit be completed.
Real Estate Excise Tax Affidavit prior to Jan. 1, 2020 Washington dahp wa Doc Template
Lewis County Wa Real Estate Excise Tax Affidavit real estate excise tax information & form. The minimum payment to process a reet. this section explains when a real estate excise tax affidavit is required for the transfer of real property. real estate excise tax information & form. Washington state law requires that a real estate excise tax affidavit be completed. please print and complete four copies of the real estate excise tax affidavit. Although acceptable in lewis county, the following excise tax forms may not be accepted in all counties. use this worksheet to calculate state and local real estate excise tax (reet) per county, when the sale includes parcels in. use this worksheet to calculate state and local real estate excise tax (reet) per county, when the sale includes parcels in.
From printableformsfree.com
Real Estate Excise Tax Affidavit Pierce County Fillable Form Printable Forms Free Online Lewis County Wa Real Estate Excise Tax Affidavit Although acceptable in lewis county, the following excise tax forms may not be accepted in all counties. Washington state law requires that a real estate excise tax affidavit be completed. The minimum payment to process a reet. use this worksheet to calculate state and local real estate excise tax (reet) per county, when the sale includes parcels in. . Lewis County Wa Real Estate Excise Tax Affidavit.
From www.templateroller.com
Form REV84 0001BE Download Fillable PDF or Fill Online Real Estate Excise Tax Affidavit Lewis County Wa Real Estate Excise Tax Affidavit use this worksheet to calculate state and local real estate excise tax (reet) per county, when the sale includes parcels in. Although acceptable in lewis county, the following excise tax forms may not be accepted in all counties. this section explains when a real estate excise tax affidavit is required for the transfer of real property. real. Lewis County Wa Real Estate Excise Tax Affidavit.
From www.pdffiller.com
Fillable Online Washington State Law requires that a Real Estate Excise Tax Affidavit be Lewis County Wa Real Estate Excise Tax Affidavit this section explains when a real estate excise tax affidavit is required for the transfer of real property. use this worksheet to calculate state and local real estate excise tax (reet) per county, when the sale includes parcels in. Although acceptable in lewis county, the following excise tax forms may not be accepted in all counties. Washington state. Lewis County Wa Real Estate Excise Tax Affidavit.
From www.printableaffidavitform.com
Wa Real Estate Excise Tax Affidavit Forms 2023 Lewis County Wa Real Estate Excise Tax Affidavit please print and complete four copies of the real estate excise tax affidavit. use this worksheet to calculate state and local real estate excise tax (reet) per county, when the sale includes parcels in. real estate excise tax information & form. Although acceptable in lewis county, the following excise tax forms may not be accepted in all. Lewis County Wa Real Estate Excise Tax Affidavit.
From www.pdffiller.com
Fillable Online REAL ESTATE EXCISE TAX AFFIDAVIT RETURN FORM 84 0001B PDF. REAL ESTATE EXCISE Lewis County Wa Real Estate Excise Tax Affidavit use this worksheet to calculate state and local real estate excise tax (reet) per county, when the sale includes parcels in. The minimum payment to process a reet. Washington state law requires that a real estate excise tax affidavit be completed. this section explains when a real estate excise tax affidavit is required for the transfer of real. Lewis County Wa Real Estate Excise Tax Affidavit.
From www.templateroller.com
Form REV84 0001A Download Printable PDF or Fill Online Real Estate Excise Tax Affidavit Lewis County Wa Real Estate Excise Tax Affidavit real estate excise tax information & form. The minimum payment to process a reet. use this worksheet to calculate state and local real estate excise tax (reet) per county, when the sale includes parcels in. use this worksheet to calculate state and local real estate excise tax (reet) per county, when the sale includes parcels in. Washington. Lewis County Wa Real Estate Excise Tax Affidavit.
From www.formsbank.com
Fillable Form Rev 840001b Real Estate Excise Tax Affidavit/return 1998 printable pdf download Lewis County Wa Real Estate Excise Tax Affidavit please print and complete four copies of the real estate excise tax affidavit. use this worksheet to calculate state and local real estate excise tax (reet) per county, when the sale includes parcels in. Washington state law requires that a real estate excise tax affidavit be completed. The minimum payment to process a reet. real estate excise. Lewis County Wa Real Estate Excise Tax Affidavit.
From www.templateroller.com
Form REV84 0001A Download Printable PDF or Fill Online Real Estate Excise Tax Affidavit Lewis County Wa Real Estate Excise Tax Affidavit Washington state law requires that a real estate excise tax affidavit be completed. use this worksheet to calculate state and local real estate excise tax (reet) per county, when the sale includes parcels in. Although acceptable in lewis county, the following excise tax forms may not be accepted in all counties. real estate excise tax information & form.. Lewis County Wa Real Estate Excise Tax Affidavit.
From www.affidavitform.net
Form Of Real Estate Excise Tax Affidavit For Washington Lewis County Wa Real Estate Excise Tax Affidavit please print and complete four copies of the real estate excise tax affidavit. Although acceptable in lewis county, the following excise tax forms may not be accepted in all counties. this section explains when a real estate excise tax affidavit is required for the transfer of real property. use this worksheet to calculate state and local real. Lewis County Wa Real Estate Excise Tax Affidavit.
From www.templateroller.com
Form REV84 0001A Download Fillable PDF or Fill Online Real Estate Excise Tax Affidavit Lewis County Wa Real Estate Excise Tax Affidavit please print and complete four copies of the real estate excise tax affidavit. Although acceptable in lewis county, the following excise tax forms may not be accepted in all counties. this section explains when a real estate excise tax affidavit is required for the transfer of real property. use this worksheet to calculate state and local real. Lewis County Wa Real Estate Excise Tax Affidavit.
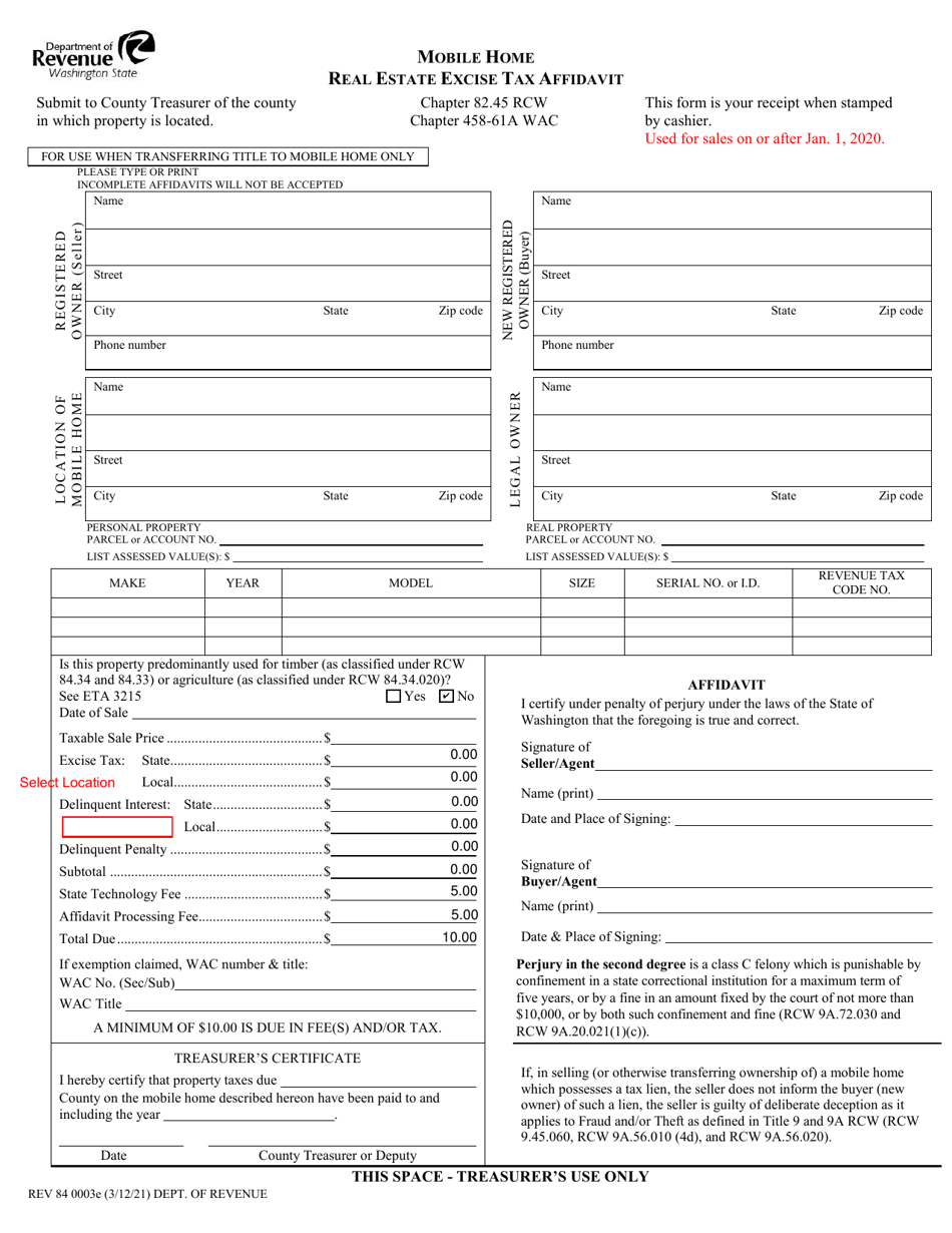
From www.templateroller.com
Form REV84 0003E Download Fillable PDF or Fill Online Mobile Home Real Estate Excise Tax Lewis County Wa Real Estate Excise Tax Affidavit Washington state law requires that a real estate excise tax affidavit be completed. real estate excise tax information & form. use this worksheet to calculate state and local real estate excise tax (reet) per county, when the sale includes parcels in. Although acceptable in lewis county, the following excise tax forms may not be accepted in all counties.. Lewis County Wa Real Estate Excise Tax Affidavit.
From www.pdffiller.com
Fillable Online dor wa Real Estate Excise Tax Affidavit Fax Email Print pdfFiller Lewis County Wa Real Estate Excise Tax Affidavit The minimum payment to process a reet. this section explains when a real estate excise tax affidavit is required for the transfer of real property. Although acceptable in lewis county, the following excise tax forms may not be accepted in all counties. use this worksheet to calculate state and local real estate excise tax (reet) per county, when. Lewis County Wa Real Estate Excise Tax Affidavit.
From www.affidavitform.net
Real Estate Excise Tax Affidavit Form Lewis County Wa Real Estate Excise Tax Affidavit use this worksheet to calculate state and local real estate excise tax (reet) per county, when the sale includes parcels in. real estate excise tax information & form. please print and complete four copies of the real estate excise tax affidavit. this section explains when a real estate excise tax affidavit is required for the transfer. Lewis County Wa Real Estate Excise Tax Affidavit.
From www.pdffiller.com
Fillable Online dor wa Real Estate Excise Tax Amended Affidavit Certification Form 840023 Fax Lewis County Wa Real Estate Excise Tax Affidavit please print and complete four copies of the real estate excise tax affidavit. use this worksheet to calculate state and local real estate excise tax (reet) per county, when the sale includes parcels in. real estate excise tax information & form. this section explains when a real estate excise tax affidavit is required for the transfer. Lewis County Wa Real Estate Excise Tax Affidavit.
From www.formsbank.com
Fillable Form 84 0001be (A) Real Estate Excise Tax Affidavit Controlling Interest Transfer Lewis County Wa Real Estate Excise Tax Affidavit Although acceptable in lewis county, the following excise tax forms may not be accepted in all counties. use this worksheet to calculate state and local real estate excise tax (reet) per county, when the sale includes parcels in. The minimum payment to process a reet. Washington state law requires that a real estate excise tax affidavit be completed. . Lewis County Wa Real Estate Excise Tax Affidavit.
From www.templateroller.com
Form REV84 0005E1 Download Fillable PDF or Fill Online Real Estate Excise Tax Statement of Taxes Lewis County Wa Real Estate Excise Tax Affidavit Washington state law requires that a real estate excise tax affidavit be completed. real estate excise tax information & form. use this worksheet to calculate state and local real estate excise tax (reet) per county, when the sale includes parcels in. The minimum payment to process a reet. use this worksheet to calculate state and local real. Lewis County Wa Real Estate Excise Tax Affidavit.
From www.pdffiller.com
Fillable Online dor wa Mobile Home Real Estate Excise Tax Affidavit Wa Fax Email Print pdfFiller Lewis County Wa Real Estate Excise Tax Affidavit The minimum payment to process a reet. real estate excise tax information & form. please print and complete four copies of the real estate excise tax affidavit. Although acceptable in lewis county, the following excise tax forms may not be accepted in all counties. use this worksheet to calculate state and local real estate excise tax (reet). Lewis County Wa Real Estate Excise Tax Affidavit.
From www.pdffiller.com
Fillable Online Excise Tax Affidavit State Of Washington Form. Excise Tax Affidavit State Of Lewis County Wa Real Estate Excise Tax Affidavit use this worksheet to calculate state and local real estate excise tax (reet) per county, when the sale includes parcels in. Although acceptable in lewis county, the following excise tax forms may not be accepted in all counties. real estate excise tax information & form. please print and complete four copies of the real estate excise tax. Lewis County Wa Real Estate Excise Tax Affidavit.